Idi na sadržaj

Tip 135 - G&G gradnja Ivanjica - montažne kuće

G&G gradnja Ivanjica - Tvoje mesto za montažne kuće !
Skip menu
G&G gradnja Ivanjica
Sivčina bb
32 250 Ivanjica, Srbija
+381 65 2414 134
+381 64 4676 084
milorad.gavrilovic980@gmail.com
Skip menu
Montažna kuća Tip 135
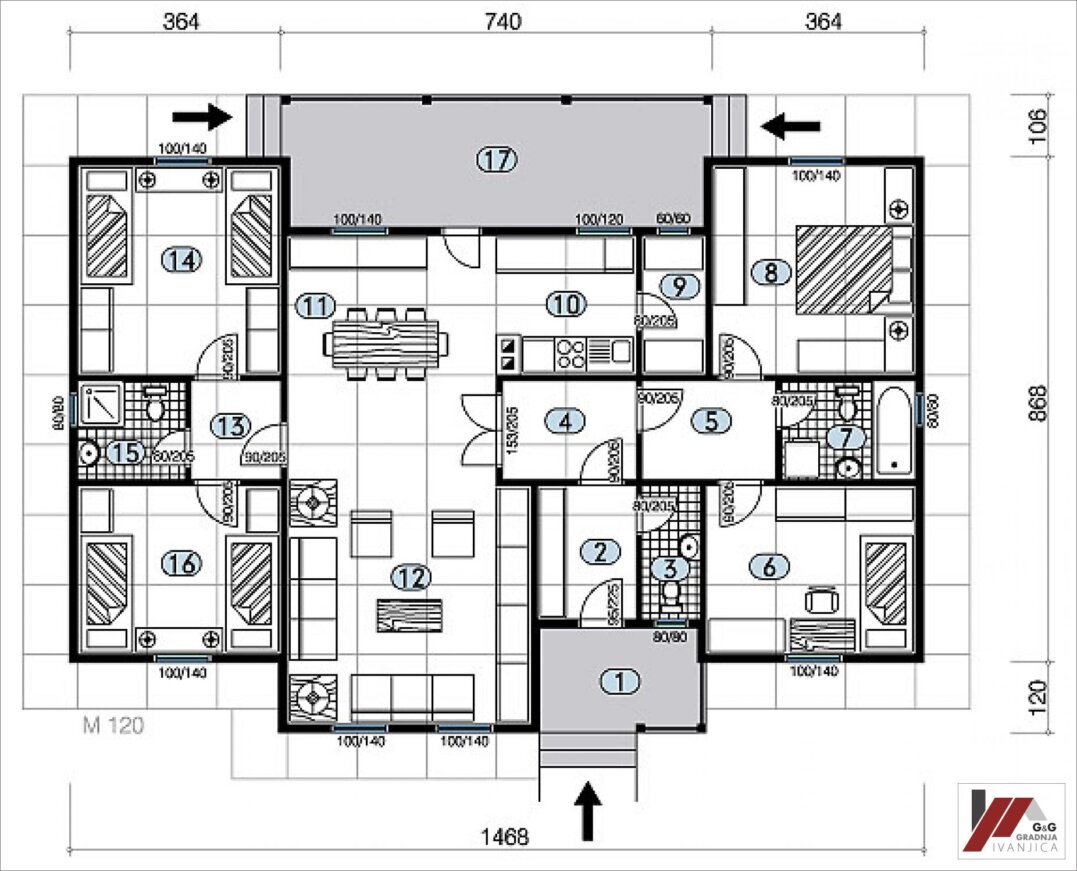
Raspored prostorija
Red. br. Prostorija Površina (m2)
1Ulaz5,80
2Vetrobran3,68
3WC2,76
4Predsoblje3,74
5Degažman4,08
6Dečija soba10,15
7Kupatilo3,91
8Spavaća soba12,60
9Ostava2,88
10Kuhinja5,03
11Trpezarija12,96
12Dnevni boravak19,74
13Degažman2,72
14Dečija soba12,60
15Kupatilo3,06
16Soba za goste10,15
17Terasa17,88
Neto površina 133,74
Bruto površina 148,36
Cena montažnih kuća varira u zavisnosti od nekoliko faktora, kao što su stepen izgrađenosti - da li birate samo "sivu fazu" ili želite da dobijete kuću "ključ u ruke". Takođe, važno je obratiti pažnju na nivo izolacije spoljašnjih zidova, vreme montaže na terenu, kao i udaljenost od našeg skladišta do vašeg gradilišta. Ne brinite, preciznu cenu svake montažne kuće dobićete unapred, čim preciziramo sve detalje. Naša ekipa je tu da vam pomogne da dobijete najbolju ponudu i da vaša nova kuća postane stvarnost!
Nazad na sadržaj